Бизнес-центр «Фактория»

  • Москва, Вятская ул., 27 корп. 5

Мы предлагаем

Аренда и продажа офисных помещений в 5-этажном Фактория по адресу Москва, Вятская ул., 27 корп. 5 от собственника без комиссии

Звоните: +7 (495) 822-30-70

  • Метро

    Савёловская

  • Район

    Савёловский

  • Округ

    Северный (САО)

  • Деловая зона

    Между ТТК и МКАД

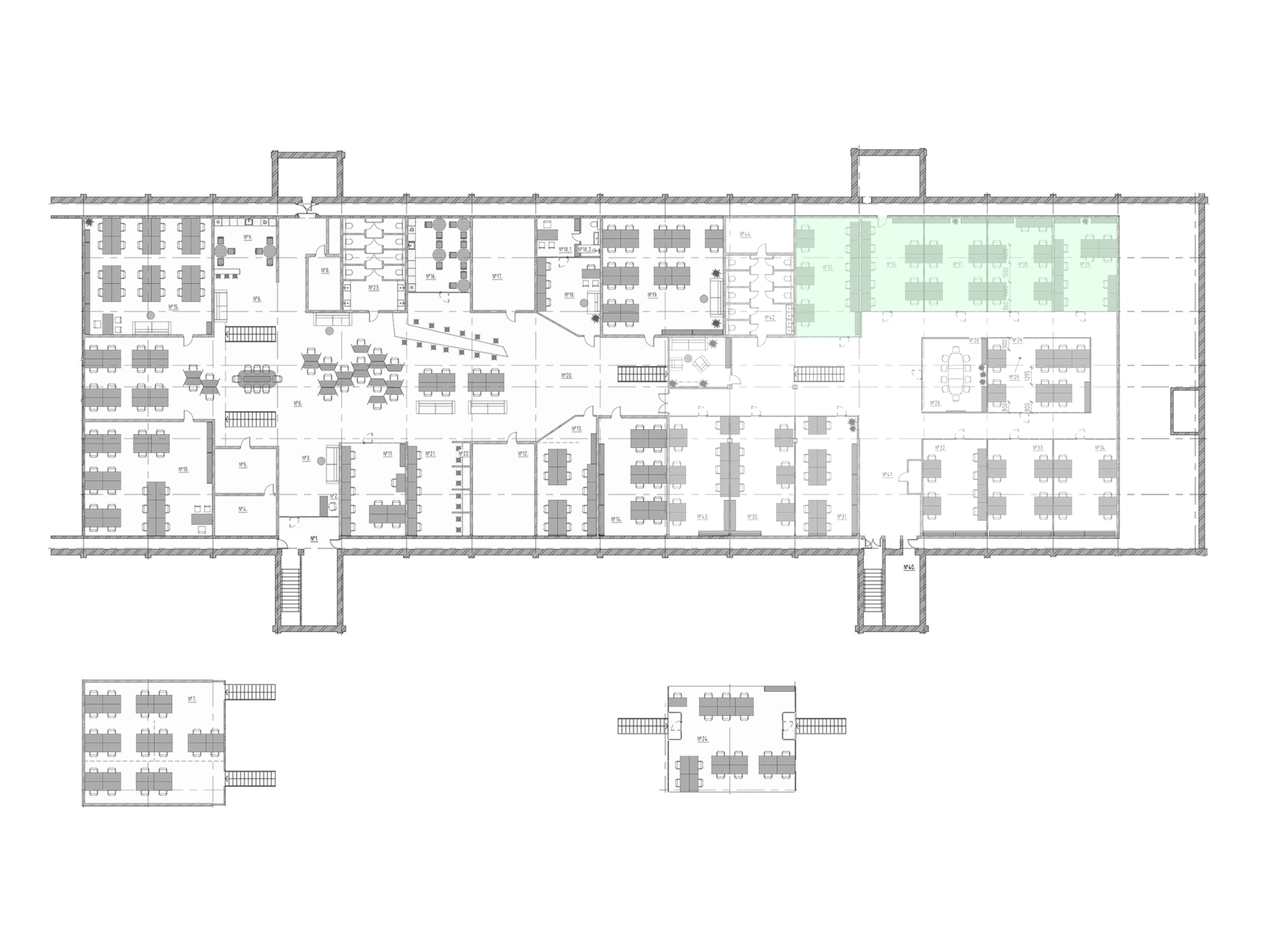
Свободные площади, аренда

    • Площадь

      146 м2

    • Этаж

      1 из 5

    • Ставка в год

      34 160.0 ₽/м2

      вкл. OPEX, НДС

      Включено: OPEX, НДС

      Оплачивается отдельно: Интернет, Коммунальные услуги, Телефония, Уборка, Электроэнергия

    • Стоимость в месяц

      415 613.3 ₽

    • Свободно

      Планируемая дата готовности: 01.06.2026

    • Площадь

      296 м2

    • Этаж

      1 из 5

    • Ставка в год

      28 060.0 ₽/м2

      вкл. OPEX, НДС

      Включено: OPEX, НДС

      Оплачивается отдельно: Интернет, Коммунальные услуги, Телефония, Уборка, Электроэнергия

    • Стоимость в месяц

      692 146.7 ₽

    • Свободно

Актуальная информация обо всех вакантных площадях предоставляется по запросу

Характеристики

  • Арендопригодная площадь, кв.м

    48 000

  • Общая площадь, кв.м

    59 500

  • Статус

    Построен

  • Код налоговой

    14

  • Год постройки

    1899

  • Этажность

    5

  • Тип здания

    Бизнес-Парк

  • Кондиционирование

    Центральное

  • Вентиляция

    Приточно-вытяжная

  • Инфраструктура

    Банкомат, Кафе, Минимаркет, Отель, Ресторан, Салон красоты, Столовая, Фитнес-клуб

  • Высота потолков

    3 м

  • Лифт

    есть

  • Планировка

    Open space, Кабинеты

  • Многоуровневый паркинг

    Есть

  • Паркинг подземный, м/мест

    108

  • Паркинг наземный открытый, м/мест

    458

  • Провайдеры

    Вымпелком, Гарс Телеком, МастерТел, Мегафон

Фотогалерея

Об объекте

Бизнес-центр "Фактория" - это современный и стильный комплекс, расположенный в самом сердце Москвы. Он предлагает превосходные условия для успешного ведения бизнеса и создания комфортного рабочего пространства. "Фактория" привлекает внимание своим современным дизайном, высоким уровнем сервиса и инновационными технологиями.

Внутри бизнес-центра "Фактория" предоставляются современные офисные помещения, разработанные с учетом потребностей современных компаний. Здесь вы найдете просторные и функциональные офисы, оснащенные передовыми технологиями и коммуникационными системами. Бизнес-центр также предлагает полный спектр дополнительных услуг, включая конференц-залы, рестораны и кафе, фитнес-центр и подземную парковку для удобства сотрудников и посетителей.

Расположение "Фактории" является еще одним преимуществом этого бизнес-центра. Он находится в центре Москвы, в непосредственной близости от деловых и торговых центров, государственных учреждений и культурных объектов. Благодаря прекрасной транспортной доступности и развитой инфраструктуре, "Фактория" предоставляет удобные условия для работы и проведения важных деловых встреч.

Адрес

Москва, Вятская ул., 27 корп. 5